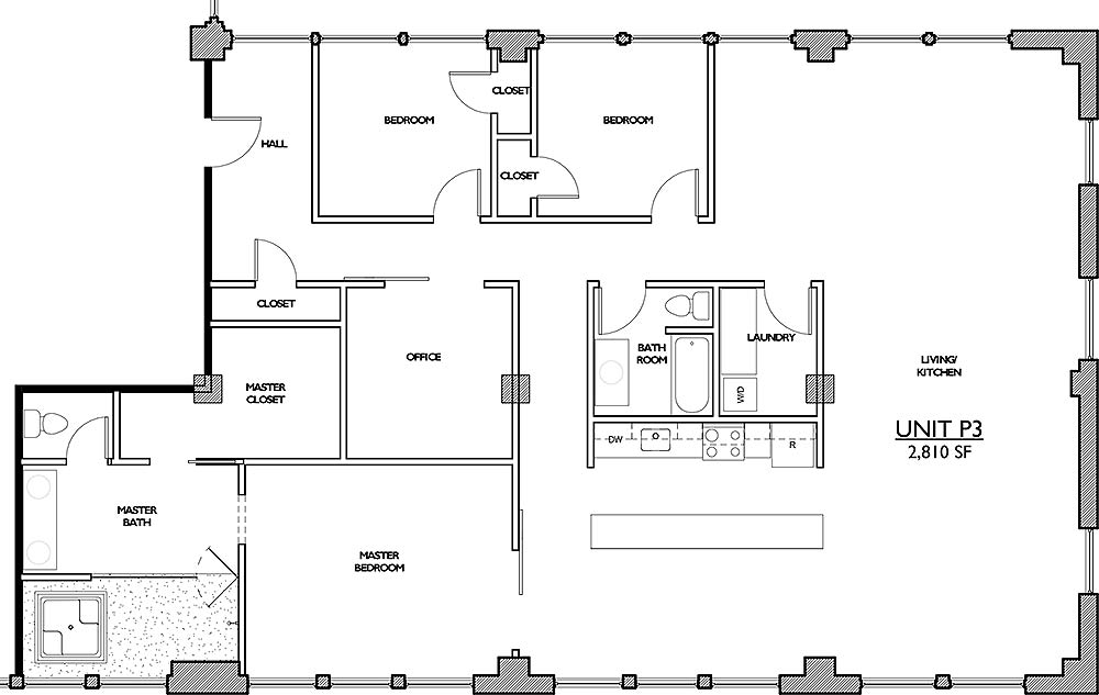
3 BEDROOMS/ 2 BATHS
ENTRY FOYER WITH COAT CLOSET
BONUS ROOM FOR OFFICE, LIBRARY, NURSERY
1 BATH WITH EUROPEAN TUB/SHOWER COMBO
1 LUXURY BATH - GLASS ENCLOSED SHOWER AND SOAKING TUB
LARGE CUSTOM KITCHEN WITH ISLAND AND PANTRY
DISHWASHER, REFRIGERATOR, STOVE AND BUILT-IN MICROWAVE
FULL SIZED WASHER AND DRYER
CUSTOM LAUNDRY ROOM
CUSTOM LARGE WALK-IN MASTER CLOSET
21 OVERSIZED WINDOWS
